der ungeregelte Sonderbau als dynamische Produktionsstätte für vorgefertigte Holzmodulbauweise
Brandschutzkonzept / Bemessung nach Industriebaurichtlinie Abschnitt 6 / Brandschutzpläne
Flying Space Halle Fa. SchwörerHaus KG
Bauherr: SchwörerHaus KG Planung: SchwörerHaus KG
Bildquelle: Fa. SchwörerHaus KG
Holzmodulbau – individuell, flexibel, mehrgeschossig
Brandschutzkonzept / Brandschutzpläne
Aufstockung, Anbau und Umbau des Gesundheitszentrum Hohenstein-Bernloch
Bauherr: Hans Schwörer Stiftung Planung: SchwörerHausKG
Bildquelle: Fa. SchwörerHaus KG
Beherbergung, Jugendarbeit, ganzheitliche Lösung für den flexiblen Nutzerkreis
Brandschutzkonzept – Beherbergungsstätte / Brandschutzpläne
Anbau und Modernisierung Helmut-Werner-Hütte Sonnenbühl
Bauherr: Ev. Kirchengemeinde Sonnenbühl Planung: dreifacharchitektur, reutlingen-gönningen
Bildquelle: albbrandschutz_Dirk Mettenberger
angepasst entwickelte Lösung für den konkreten Fall an der konkreten Grundstücksgrenze
Stellungnahme zur Konzeption Brandschutz im Baugenehmigungsverfahren wegen besonderer Grundstückssituation / Brandschutzpläne
Anbau und Sanierung /Renovierung Wohnhaus
Planung: dreifacharchitektur, reutlingen-gönningen
Bildquelle: albbrandschutz_Dirk Mettenberger
Holzindustrie
Brandschutzkonzept als Brandschutznachweis zur Errichtung einer Fassadenverkleidung / Brandschutzpläne
Errichtung einer Fassadenverkleidung für bestehende Überdachung zur Holzlagerung
Bauherr: SchwörerHaus KG Planung: SchwörerHaus KG
Bildquelle: SchwörerHaus KG
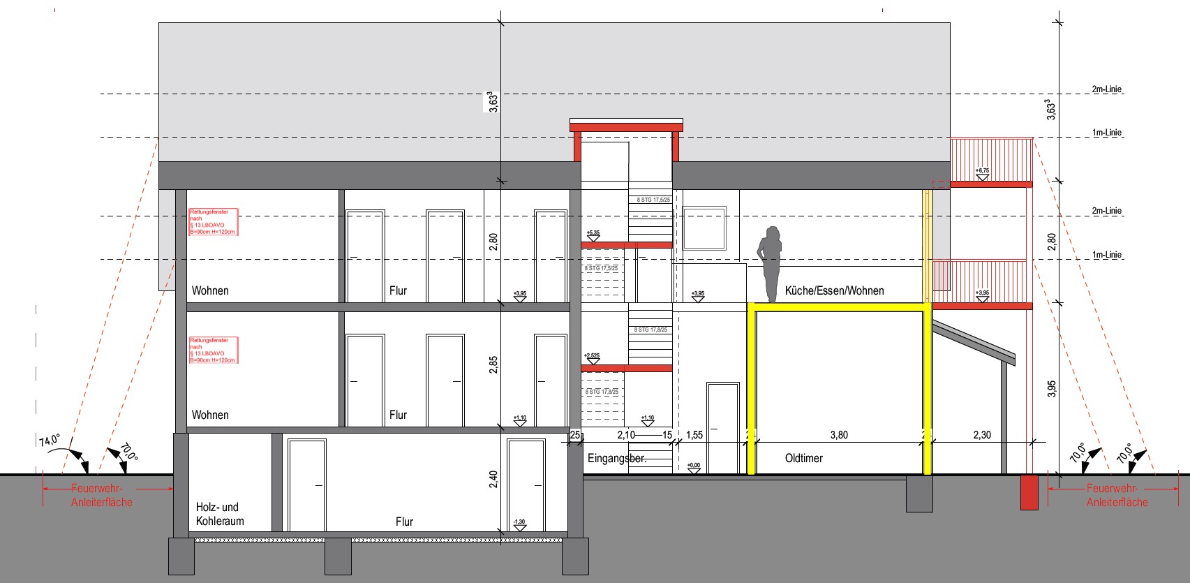
Problemstellung konkret erfasst – formal begleitet – konstruktive Impulse gesetzt
Stellungnahme zur Konzeption Brandschutz im Baugenehmigungsverfahren wegen Maisonette-Situation und Rettungswegproblematik / Fahr- und Stellprobe mit dem Hubrettungsfahrzeug / Brandschutzpläne
Renovierung Wohnhaus
Planung: dreifacharchitektur, reutlingen-gönningen
Bildquelle: albbrandschutz_Dirk Mettenberger
ganzheitlich neue Nutzung durchdacht
Stellungnahme zur Konzeption Brandschutz im Baugenehmigungsverfahren wegen besonderer Nutzungssituation / Brandschutzpläne
Umbau Wohnhaus und Scheune
Planung: PLAN_i architekten, Reutlingen
Bildquelle: albbrandschutz_Dirk Mettenberger
der Wert des Bestands – ein Hoch auf die alten Baumeister
historische BauSubstanz erhalten – Unterdecken und Tragwerk bleiben in definierten Bereichen sichtbar
Beratung und Begleitung bei der konstruktiven Ausführung
Umbau Wohnhaus und Scheune (Alter ca. 300 Jahre) zu Arztpraxis und Yoga-Zentrum
Planung: architecture | s, burladingen
Bildquelle: albbrandschutz_Dirk Mettenberger
Flucht- und Rettungswegplan
Gewerbebetrieb
Planung: albbrandschutz | planen beraten schützen
Bildquelle: albbrandschutz_Dirk Mettenberger

























